700 m²
NEW BUILDING OF THE TRETYAKOV GALLERY — INTERMUSEUM FORUM
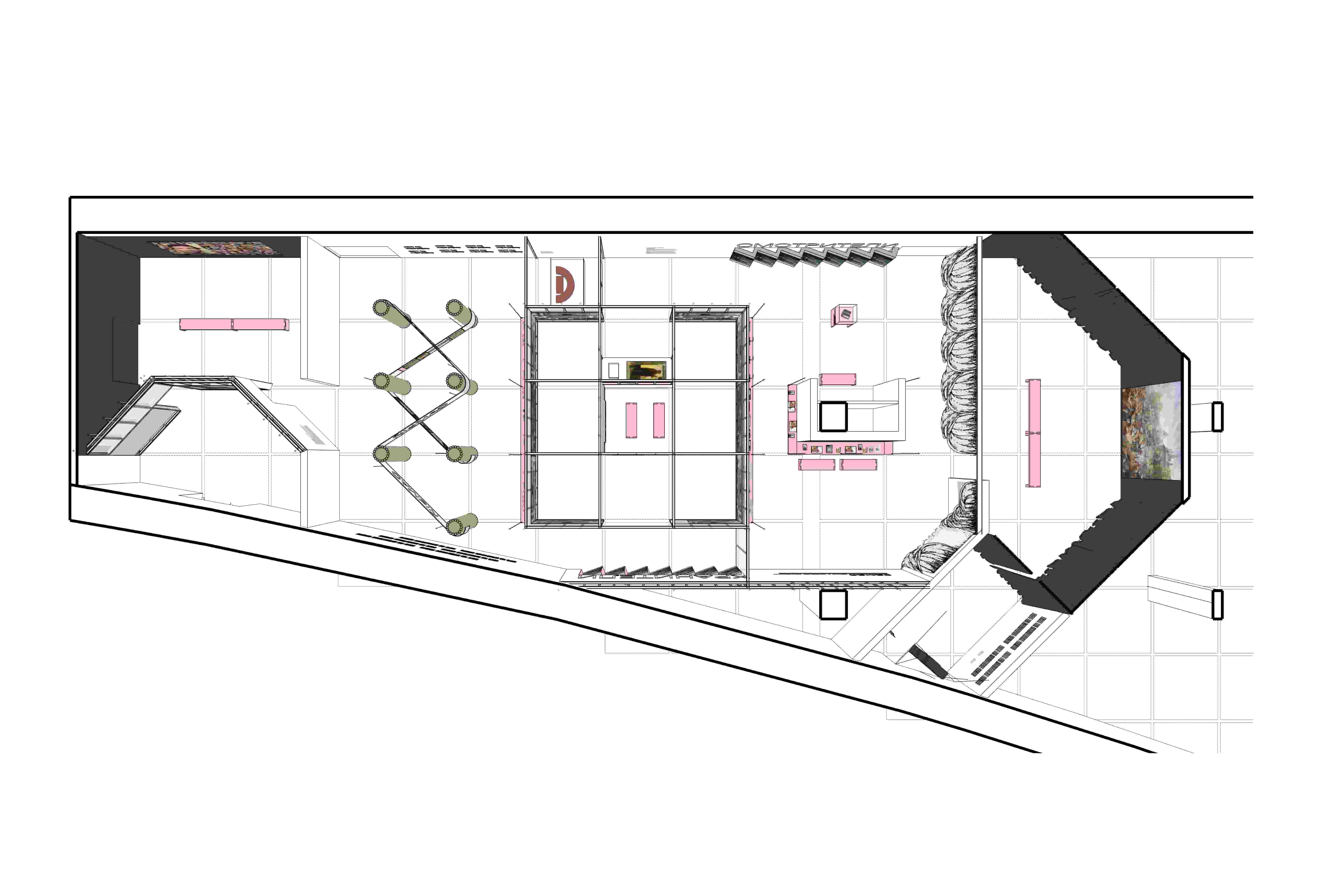
The exhibition «This Is a Museum» is dedicated to the hidden facets of museum life. At its core is the principle of «the very best» (the oldest museum, the largest museum collection, etc.). The exposition reveals the history of the museum’s origin, its structure and evolution, and above all, the specialists who bring it to life and transform the building with exhibits into a safe and welcoming space for communication. Here, regardless of age or education, people can come together to share experiences and build bridges between generations and cultures.
The main characters of the exhibition are museum directors, custodians, restorers, caretakers, and other indispensable specialists without whom the modern museum could not exist. Most of them remain out of the ordinary visitor’s sight, creating the unique magic of the museum.
The exhibition is timed to coincide with the international festival "Intermuseum-2024," held for the first time after a four-year break, supported by the Ministry of Culture of the Russian Federation and the Government of Moscow.
The architectural concept is a careful manifesto of museum processes through the romance of construction.
Curator: Nina Gomiashvili
Team: Alexandra Razina, Sergey Meshalkin, Anastasia Mokhova

