300 m²
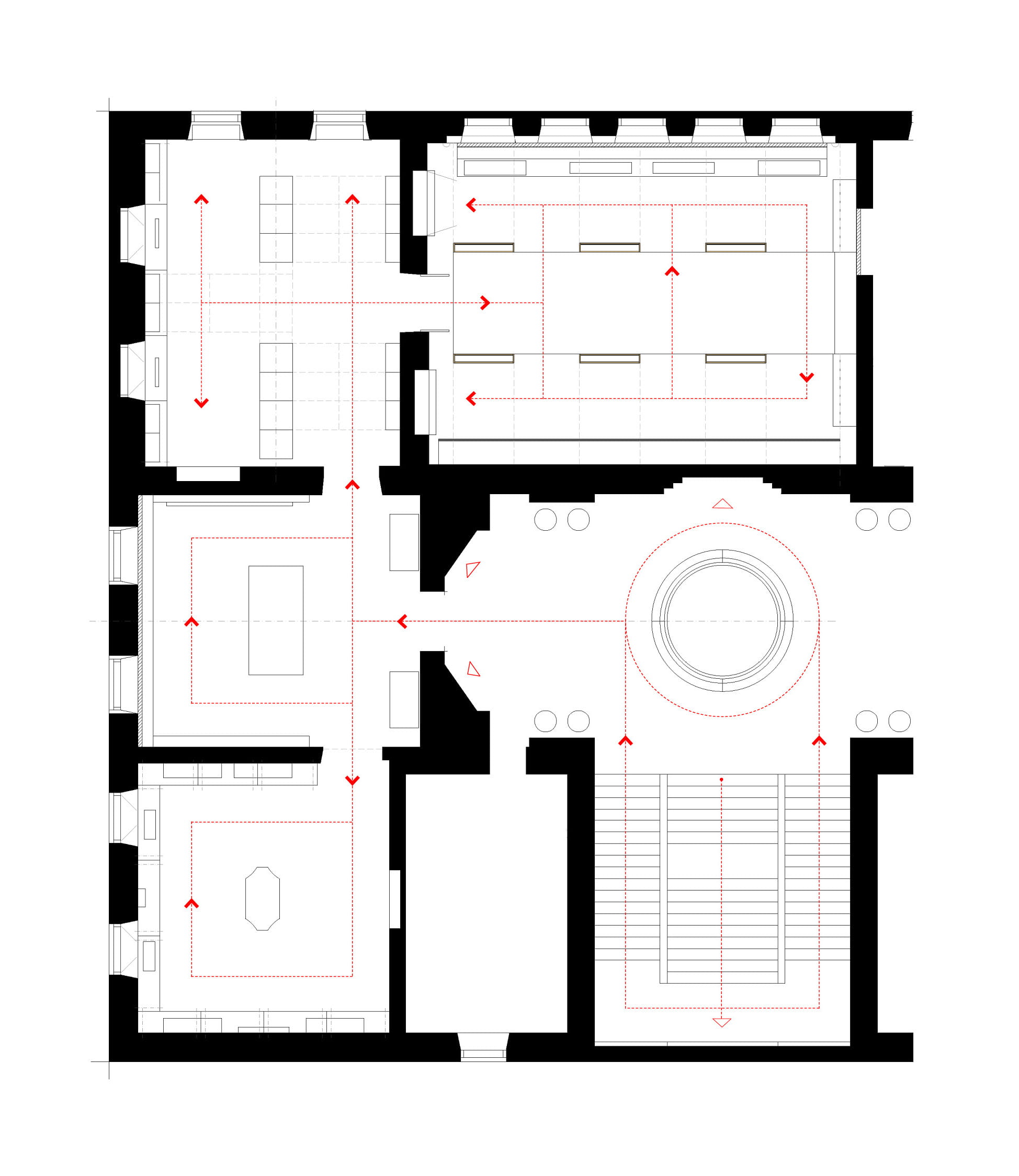
Through the project «In the Name of Craft», the All-Russian Museum of Decorative Art opens a space for dialogue, asking: What should artistic crafts be today? and What more must be done «in the name of Craft»? For the first time, artistic crafts are presented as a collection of treasures. Each selected piece is a legend, and they have never before been exhibited together. This is a contest of masters, a celebration of beauty and excellence among equals. Conceptually, the exhibition is divided into an entrance area and four main halls. The introductory hall presents general information about those who studied, collected, and researched crafts in Russia, while also showcasing the most striking works and a cartography of crafts across the country. Each of the three subsequent halls is designed in its own color palette and material language, corresponding to the category of craft represented within it. Along the walls, continuous display surfaces form a unifying design element, emphasizing the exhibition’s research and educational focus.
In the architectural forms and showcase details, the team sought to create a sense of archival depth and abundance of objects, reminiscent of early Soviet exhibitions. Historical references are combined with authentic elements — in some areas, original showcases from the museum’s storage were reused. For example, the tall shelving unit with glass objects in the center of the Red Hall was created on the basis of an antique display cabinet made of mahogany, dating back to the early 20th century.Curator: Nina Gomiashvili
Team: Alexandra Razina, Sergey Meshalkin
Implementation: Art-Proekt, Fedor Kudryavtsev
Photo: Vasily Bulanov
.jpg)
